MOGADOR
Création d'un kiosque de vente à emporter.

Localisation: Paris - 9e
Commanditaire: Client privé
Mission:  Conception et suivi de Maîtrise d'Oeuvre
Surface: 20m²
Livraison:  2016
Crédit photos:  © David Foessel

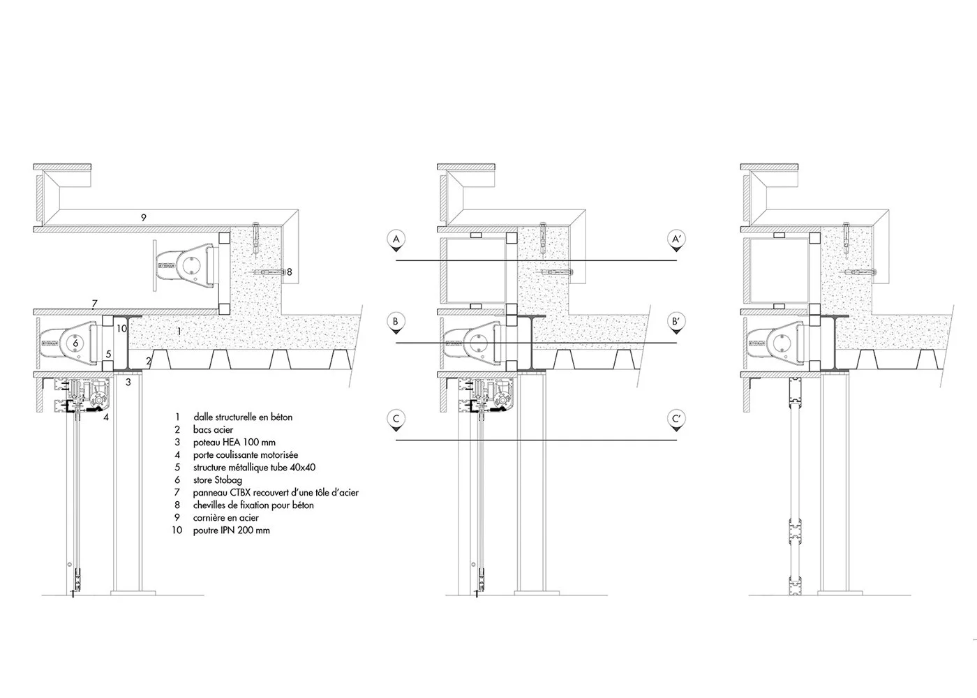
Le défi de ce projet était de pouvoir intégrer dans une minuscule parcelle triangulaire de 20m², l’ensemble des fonctionnalités d’un restaurant: espace cuisine, stockage, sanitaires, comptoir de vente, sans oublier les contraintes du site et le contexte urbain dans lesquels devait s’implanter le projet.

Situé à l’angle de deux rues, en plein cœur du quartier de l'Opéra à Paris, ce kiosque-restaurant autonome, se déploie et se replie au fil de la journée. 

Véritable objet architectural, le restaurant se compose d’une structure d’acier autoportante intégrant sur ses trois faces de grandes baies vitrées en aluminium thermolaqué, alternant vantaux fixes et coulissants, permettant cette fluidité de circulation dans un espace exigu. Le tout surmonté d’une large casquette divisée en trois sections égales, permettant de dissimuler des store bannes motorisés, créant ainsi une terrasse couverte sur l’ensemble du kiosque.

Précédent
Précédent

Annecy

Suivant
Suivant

LaM