MOELAN-SUR-MER
Rénovation et extension d’une maison néo-bretonne

Localisation:  Moëlan-sur-Mer
Commanditaire:  Client privé
Mission:  Conception + Permis de Construire
Surface: 170m² / terrain - 5200m²
Budget:  NC
Livraison:  Études en cours
Crédits photos:  © Julien Cottier 

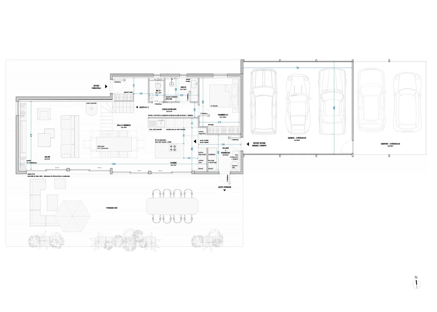
Implanté sur une parcelle paysagère de Moëlan-sur-Mer, ce projet consiste en la réhabilitation et l’extension d’une maison néo-bretonne des années 1970 afin d’accueillir une famille de cinq personnes. L ’intervention vise à clarifier la volumétrie existante et requalifier les relations entre intérieur, lumière et paysage.

La dépose de la véranda permet de recomposer l’emprise bâtie et d’intégrer une nouvelle extension contemporaine . Conçue dans une écriture sobre, elle prolonge la maison tout en conservant l’échelle domestique du bâti d’origine.
L’ organisation intérieure repose sur une implantation bioclimatique: les espaces de vie s’ouvrent largement au Sud sur le jardin grâce à de grandes baies vitrées, tandis que les pièces plus intimes prennent place au Nord.

Le projet intègre également un espace dédié à l’automobile de collection, avec l’extension du garage existant et la création d’un carport. Implantés dans les zones les plus ombragées de la parcelle, ces volumes préservent les orientations favorables pour l’habitation.

Par un travail sur l’implantation, la lumière et la volumétrie, le projet propose une réinterprétation contemporaine de la maison néo-bretonne, conciliant usages, contraintes réglementaires et qualité paysagère.

Précédent
Précédent

Ucel

Suivant
Suivant

O Distingo