LUZARCHES
Extension d’une maison individuelle.

Localisation: Luzarches (95)
Commanditaire:  Client privé
Mission:  Permis de construire
Surface:  160m²
Budget:  NC
Livraison:  PC accepté
Crédit photos:  © Julien Cottier

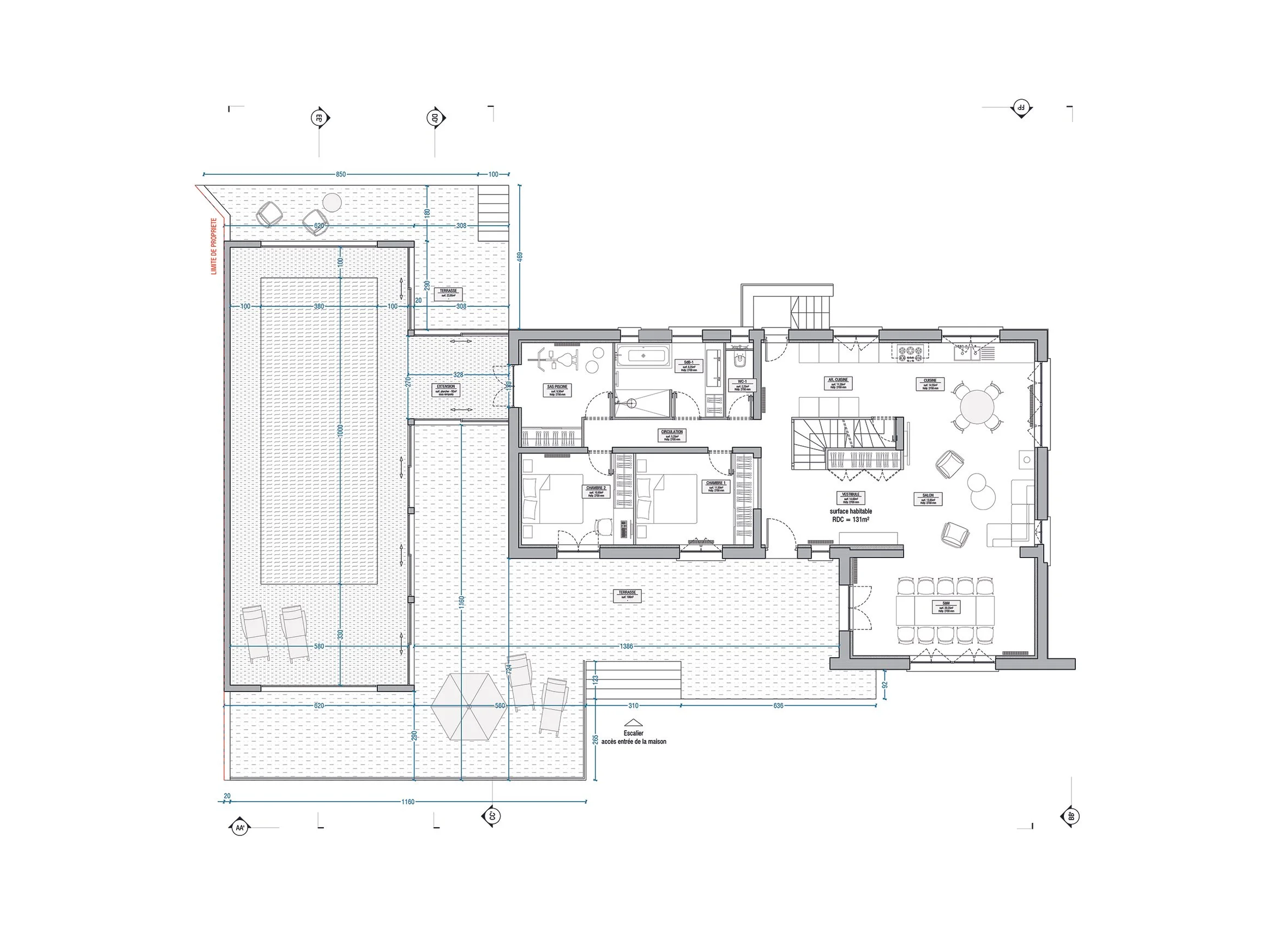
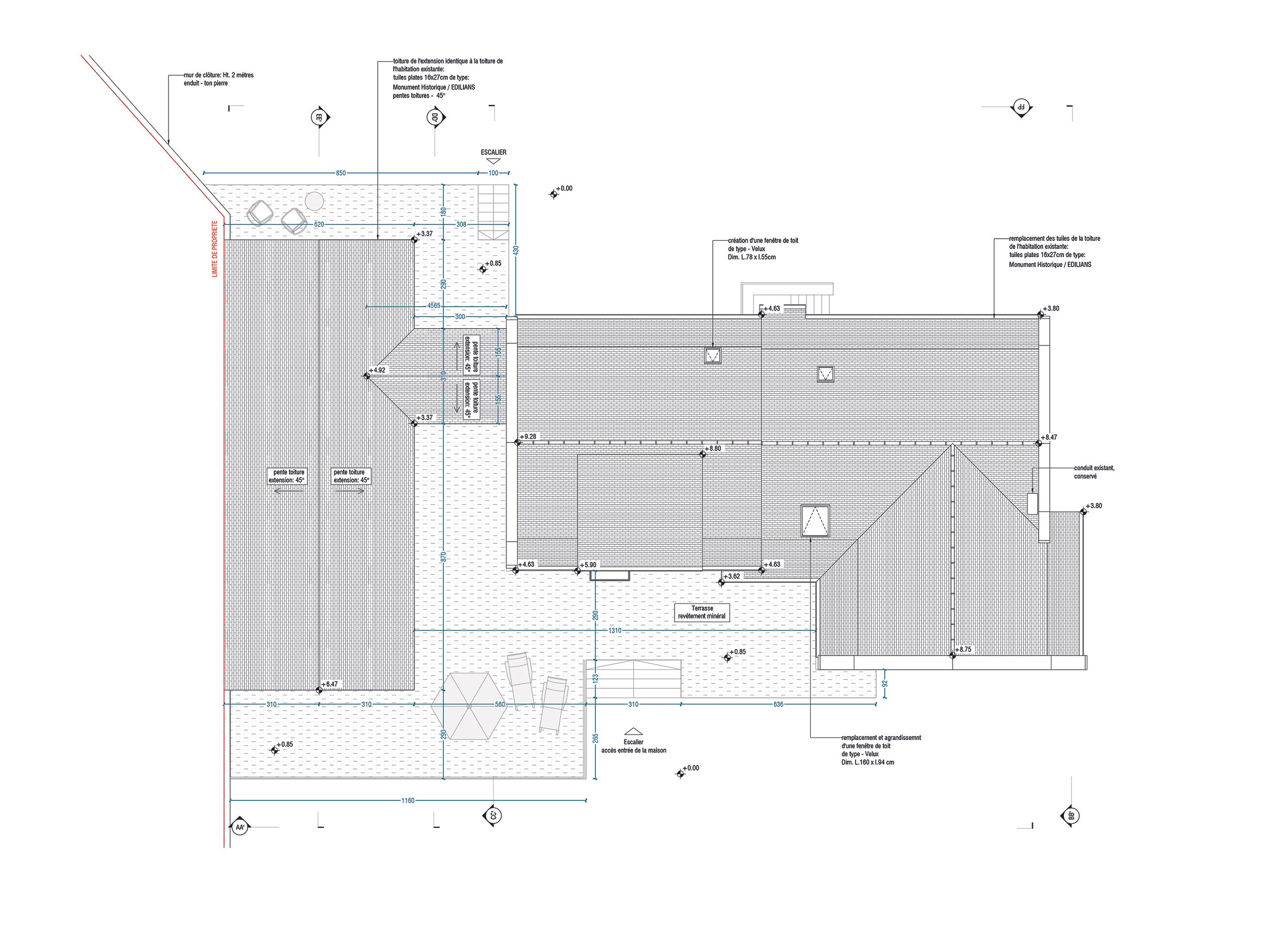
Le projet situé à Luzarches commune du Val d’Oise,  consiste à concevoir une extension attenante à une maison individuelle intégrant une piscine intérieure et un parking en sous-sol. Le bâti existant, construit dans les années 1950 en pierre meulière, présente une typologie en L, avec une articulation volumétrique formée de trois blocs distincts. La composition spatiale du bâtiment permet l'implantation d'un pavillon en limite ouest.

L' extension projetée, en résonance avec la façade pignon, crée un dialogue esthétique et formel avec l'architecture existante. Le traitement épuré du volume, associé à une façade lissée à la chaux, confère à cette nouvelle intervention une lisibilité claire et distincte en lien avec l'existant, tout en s’intégrant harmonieusement au tissu architectural environnant.

L' enjeu étant de s'insérer dans une volumétrie cohérente et unifiée, tout en préservant la lecture des différentes phases d' évolution architecturale. Plutôt que de rompre avec les matériaux traditionnels, c'est par le travail des masses et des proportions que le projet se greffe au site, renforçant ainsi son ancrage contextuel tout en affirmant sa contemporanéité.

Précédent
Précédent

ANTIBES I Hôtellerie

Suivant
Suivant

GAMBEY I Restaurant